欢迎光临江苏南希电气有限公司官网!
值得信赖的工程电气解决方案专为需要可靠性能的场所设计
全国咨询热线:0511-88393911
联系我们
0511-88393911

手机:1830528789

邮箱:jsnxdq@163.com

QQ:

地址:江苏扬中市新坝镇新治路8号

当前位置:首页>>产品展示>>开关柜

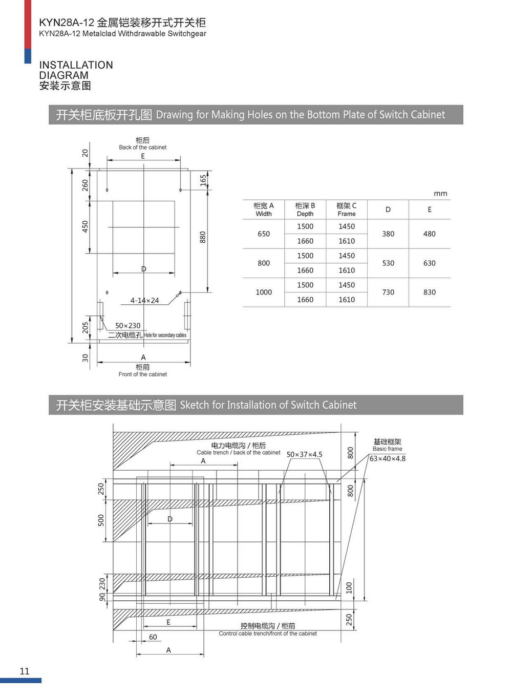
KYN28A-12金属铠装移开式开关柜

江苏南希电气有限公司

产品详情



标签:

联系方式

江苏南希电气有限公司

电话:0511-88393911

QQ:

电邮:jsnxdq@163.com

地址:江苏扬中市新坝镇新治路8号

采购:KYN28A-12金属铠装移开式开关柜

相关产品/ RELATED PRODUCTS
在线客服
联系方式

热线电话

1830528789

上班时间

周一到周五

公司电话

0511-88393911

二维码
线